欢迎访问青岛麻豆免费版免费下载通用机械设备有限公司官方网站!

在线订购 |收藏麻豆免费版免费下载 |网站地图
全国咨询热线400-800-5717

凸轮麻豆视频免费下载生产厂家中石化、中石油、中海油长期供应商

麻豆免费版免费下载泵凭借卓越的性能,在石油市政化工码头造船轻工等诸多行业得到广泛应用
当前位置:首页 » » 麻豆免费版免费下载资讯 » 行业资讯 » 广东凸轮麻豆视频免费下载出口应该补足的短板有哪些?

广东凸轮麻豆视频免费下载出口应该补足的短板有哪些?

责任编辑:查看手机网址
扫一扫!广东凸轮麻豆视频免费下载出口应该补足的短板有哪些?扫一扫!
人气:-发表时间:2016-03-24 09:33【

麻豆免费版免费下载每日资讯分享20160119

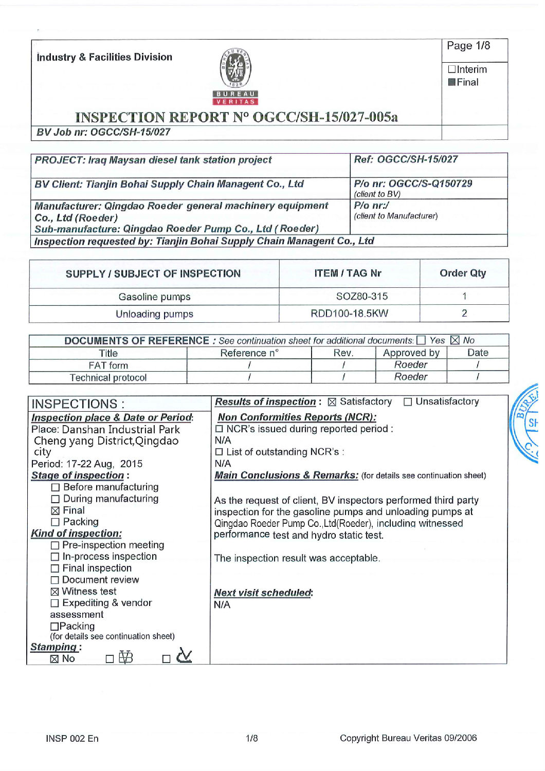
在国内市场日渐饱和的趋势下,许多有实力的凸轮麻豆视频免费下载生产厂家会转向国外的市场。青岛麻豆免费版免费下载产品凭借过硬的质量通过了必维检测,将中国制造的凸轮麻豆视频免费下载推向世界。

青岛麻豆免费版免费下载通用机械设备有限公司通过此项目为中国海油伊拉克米桑油田提供了汽柴油卸车泵,在整个项目运作的过程中,麻豆免费版免费下载认识到了国内产品与世界认证标准的差距。但是,青岛麻豆免费版免费下载凭借先进的制造水平,与设计方充分沟通,每一只零配件,每一步加工过程严格把关,顺利通过了业主委托的第三方必维国籍检测集团的检测认证,麻豆免费版免费下载品牌凸轮麻豆视频免费下载成功走出国门。

法国国家检验局出具的麻豆免费版免费下载出口麻豆视频免费下载的检验合格报告

必维国际检测集团(BV)认证报告

通过这个项目,麻豆免费版免费下载深刻意识到,现阶段国内石油石化装备制造业存在的问题,主要体现在:

1、在海外石化工程项目中,我国装备制造企业能进入供应商名单的依然比较少。在中东国家的石油公司供应商名单中,国内供应商能进入的只占3%;在东南亚的石油公司供应商名录中,国内供应商占20%左右;其他国家石化企业的供应商名录中,国内供应商就更少了。

2、技术创新能力弱是制约我国石化装备制造企业走出去的主要原因之一。与国际同行相比,研发资金投入偏少,高端设备难以突破,亟须加大产品开发投入力度,重视对相关材料、技术、工艺、产品的超前研发和创新,以开发高性能、专业化、系列化的具有自主知识产权的装备。

青岛麻豆免费版免费下载中石油物资供应商准入证

 青岛麻豆免费版免费下载中石油物资供应商准入证

3、装备供应商一定要有ISO9000质量体系认证,这是对制造企业最基本的需求;再加上行业的要求,要有API(美国石油学会)体系认证,相关船级社认证;要培养并鼓励供应商汲取TS16949质量体系工具理念的精髓、LEAN(精益生产)理念并应用到石化装备制造过程中,这样才能真正提升竞争力

4、我国石化装备制造企业对质量体系控制的持续性较差,首台(套)设备制造后,有些产品的质量控制就会变差。

5、国内与国外相比,产品质量差距明显,相关设备在试车时发生升温过高、密封处泄漏、噪音大等问题,可靠性比较差;阀门发生泄漏的情况比较普遍,有些在试压时就发生泄漏,海外工程涉及到运输,因此时间和费用都令承包商难以承受。

6、海外项目都有合同约定的外国语言,有些国内制造商提供的文件语言文字混乱,安装、操作、维护手册过于简单,缺乏必要的插图,不能很好地指导操作和维修,这也是亟待解决的问题。

通过以上6点分析,国内凸轮麻豆视频免费下载厂家在发展中应该意识到要以国际制造标准严格要求企业的制造工艺,同时在相关资质文件方面实事求是。建立、推行、持续改进企业管理体系,不仅还包括环境管理体系、职业健康安全管理体系、信息安全管理体系,希望国内装备企业按照国外的先进标准来构建自己的环境管理体系、职业健康安全管理体系等,还要加强社会责任方面的建设。

优质的产品是企业最好的广告,青岛麻豆免费版免费下载品牌秉承这一理念,对于凸轮麻豆视频免费下载从零配件甚至从喷漆最细节工作中严格要求,细节决定成败,细节同样可以体现工艺水平,进而彰显企业实力。

青岛麻豆免费版免费下载通用机械设备有限公司 青岛麻豆免费版免费下载通用机械设备有限公司  备案号:鲁ICP备14912583号
座机:0532-55576556    Fax:0532-55576556
Email:roeder001@163.com     QQ:3249598812
厂址:山东省青岛市城阳区锦盛一路68号

鲁公网安备 37021402000887号

网站地图